معماری این خانه زیبا در کوهستان شاهکار است
معماران گروه «Associati» در پروژهای با نام MON۵۸، یک سازه بتنی کوچک در منطقه ساوییز سوئیس را به فضای مسکونی تبدیل کردند.
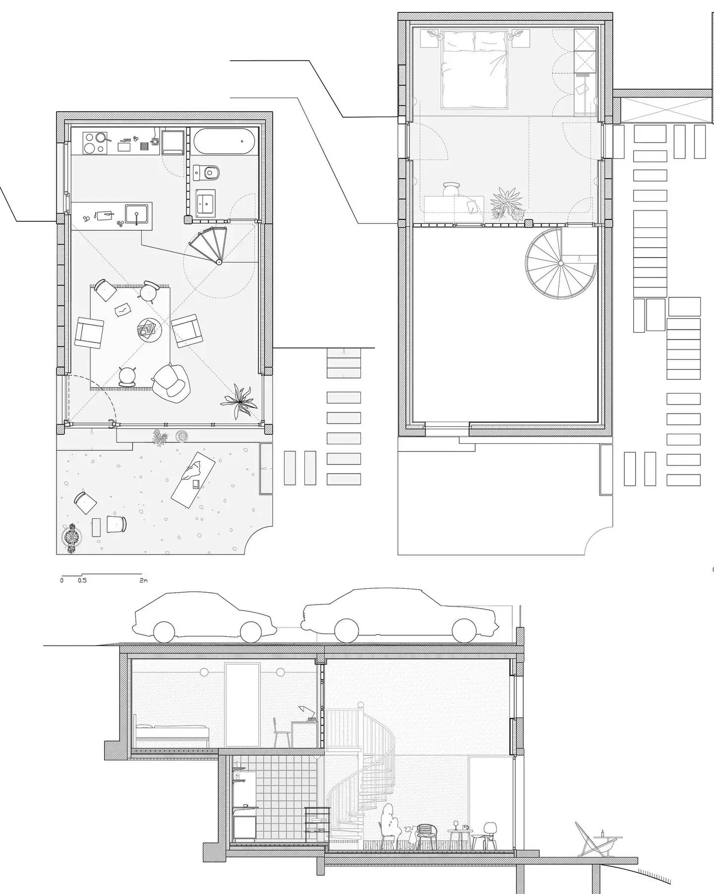
عصرایران: معماران گروه «Associati» در پروژهای با نام MON۵۸، یک سازه بتنی کوچک در منطقه ساوییز سوئیس را به فضای مسکونی تبدیل کردند. این پروژه با حفظ نمای بتنی و توسعه هوشمندانه در شیب زمین، ترکیبی از معماری مدرن و طبیعت کوهستانی را به نمایش میگذارد.

دفتر معماری «Associati» از پروژه بازسازی و توسعه یک سازه بتنی در منطقه «ساوییز» کانتون وله سوئیس رونمایی کرد. این پروژه که با همکاری معمارانی نظیر کریستف آلهانکو، لوریس گیلارد و میکائیل ساکس اجرا شده، بر پایه تبدیل یک فضای انبار و پارکینگ قدیمی به یک واحد مسکونی مدرن طراحی شده است.
حفظ اصالت سازه در شیب تند کوهستان
سازه اولیه این پروژه یک بنای بتنی دو طبقه در زمینی شیبدار است که از ستونها، تیرهای نعلدرگاهی و دالهای بتنی ساده تشکیل شده است. ابعاد طبقه همکف فوقانی ۵ در ۵ متر بوده و طبقه پایین به دلیل قرارگیری در شیب، عمق کمتری دارد. این بنا پیش از بازسازی، به عنوان نمونهای کوچک از معماری مدرن در میان طبیعت شناخته میشد.

جزئیات توسعه و راهکارهای معماری
برای تبدیل این فضا به یک مکان زندگی مجهز به اتاق خواب، حمام و آشپزخانه، معماران پروژه مسیر توسعه را به سمت جنوب انتخاب کردهاند. به دلیل فرو رفتن بخشی از بنا در شیب زمین، عایقبندی از سمت داخل انجام شده تا نمای بتن اکسپوز (نمایان) در بدنه خارجی حفظ شود. همچنین فواصل میان ستونها با آجر بتنی پر شده است. در بخش الحاقی، از نوارهای بتنی صلب استفاده شده که در نهایت برای هماهنگی با بافت آجرها و کانسپت کلی بنا، ابزارزنی و بافتدار خواهند شد. این توسعه شامل دال طبقه پایین، دیوارهای صلب، ستونها و سقف پارکینگ است.










تبلیغات متنی
-
وام ازدواج و فرزندآوری در ۱۴۰۵ چقدر است؟
-
راهنمای کامل انتخاب بهترین هاست ووکامرس برای فروشگاههای آنلاین
-
مادر داوود اشرف در تعریف از جواد عزتی کم نگذاشت
-
حکم جدید برای مصطفی تاجزاده صادر شد
-
پزشکیان در یک مراسم رسمی: از شهادت باکی ندارم
-
حرکت متفاوت المیرا شریفیمقدم برای آزادی معترضان دی ماه
-
استوری احساسی بهنوش طباطبایی جلبتوجه کرد
-
ماجرای نامه مشترک ایران، چین و روسیه به گروسی
-
فردا رسما ماه رمضان اعلام شد
-
تصویر شوکهکننده از چشم بازیکن پرسپولیس
-
سرمربی ایتالیایی، جدیترین گزینه جانشینی ساپینتو
-
کپیکاری ناشیانه ویژه برنامه ماه رمضان تلویزیون لو رفت
-
استوری خبرساز بازیگر پایتخت بعد از حضور در جشنواره
-
این مرغ خوشمزه را با این دستور ویژه درست کنید!
-
قیمت جدید مرغ اعلام شد
-
پزشکیان در یک مراسم رسمی: از شهادت باکی ندارم
-
حرکت متفاوت المیرا شریفیمقدم برای آزادی معترضان دی ماه
-
فردا رسما ماه رمضان اعلام شد
-
سرمربی ایتالیایی، جدیترین گزینه جانشینی ساپینتو
-
کپیکاری ناشیانه ویژه برنامه ماه رمضان تلویزیون لو رفت
-
تصمیم غیرمنتظره ترامپ بعد از مذاکرات ژنو
-
اولین واکنش به خبر انتقال تسلیحات روسی به تهران
-
اقدام تازه چین، مسعود پزشکیان را عصبانی کرد
-
ماجرای نمایان شدن دود غلیظ در آسمان تهران
-
تماس مهم گروسی با عراقچی بعد از مذاکره دیروز
-
خبر عجیب: استقلال عامل سقوط سهمیه ایران!
-
تمرین بستن تنگه هرمز در رزمایش سپاه
-
بهشت زهرا: مکان قبر سربازان آمریکایی فراهم شد
-
خبرنگار نزدیک به وزارت خارجه: الگوی مذاکره دولت ترامپ دور باطل است
-
ادعای اکسیوس از تصمیمات پشت پرده ترامپ درباره ایران
-
پخش آهنگ شهرام صولتی در حضور عراقچی!
-
«قربان، طلا، سوسن و زیبا» در پشتصحنه سریال «سوجان»
-
پایان مذاکرات امروز ایران و آمریکا در ژنو
-
اقدام معنادار ایران در تنگه هرمز همزمان با مذاکرات
-
مزارهای بدون سنگ؛ روایتی از چهلم نگین و مجید
-
کپی عصر جدید و نسخه فیک ماه عسل از فردا در صداوسیما
-
زیپ شلوار عراقچی مساله برخی رسانهها شد
-
شش فروند آواکس به مقصد خاورمیانه به پرواز درآمدند
-
ساعت آغاز دور دوم مذاکرات اعلام شد
-
اولین خبر رسمی از نتیجه مذاکرات امروز
-
الیزابت سریال پایتخت از منزل شیکش رونمایی کرد
-
عراقچی از ایران برای ویتکاف سوغاتی برد!
-
پایان گرمای بهاری با کاهش محسوس دما از فردا
-
دلتنگی نعیمه نظامدوست برای ماهچهره خلیلی در لندن
-
ادعای خبرساز سیانان از پیشنهاد تازه ایران به آمریکا
بانک اطلاعات مشاغل تهران و کرج
-
سالن های آرایش و زیبایی
-
پزشکان پوست و مو
-
آموزشگاه آشپزی در تهران
-
گالری پوشاک
-
اخذ ویزا
-
کاشت ناخن
-
محصولات پزشکی
-
تدریس خصوصی
-
مزون و شوی لباس
-
اعزام دانشجو
-
خدمات آرایشی و زیبایی
-
خدمات درمانی
-
مدارس
-
طلا و جواهر و زیورآلات
-
صرافی
-
محصولات آرایش و زیبایی
-
خدمات حیوانات خانگی
-
مهد کودک
-
مبلمان
-
سیسمونی و نوزاد
-
مراکز درمانی
-
پت شاپ
-
رستوران و تهیه غذا
-
تعمیرات مبل در تهران
-
خدمات تفریح و سرگرمی
-
پزشکان متخصص
-
باشگاه های ورزشی
-
فست فودهای تهران
-
سرویس خواب
-
موبایل
-
دکتر زنان در تهران
-
فروشگاه ها و لوازم ورزشی
-
کافی شاپ و سفره خانه
-
دکوراسیون داخلی
-
لوازم خانگی
-
دندانپزشکان
-
آموزشگاه ها
-
صنایع غذایی
-
تزیینات داخلی
-
خدمات منزل
-
دندانپزشکی کودک
-
آموزشگاه زبان در تهران
-
تشریفات و موسسه پذیرایی
-
خدمات ساختمان
-
فروش و خدمات خودرو
-
پزشکان زیبایی و لاغری
-
آموزشگاه موسیقی
-
خدمات مجالس
-
قالیشویی در تهران
-
سایر خدمات
-
جراحی بینی و زیبایی
-
آموزشگاه هنری
-
آتلیه عکاسی
-
آژانس مسافرتی و هتل
نظر کاربران
نمای سازه به شدت زشت